Białystok, Centrum, św. Mikołaja

Mieszkanie na sprzedaż

Opis nieruchomości

Klimatyczne mieszkanie ścisłym centrum miasta - TYLKO U NAS!

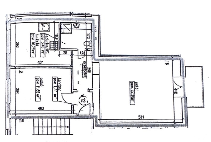
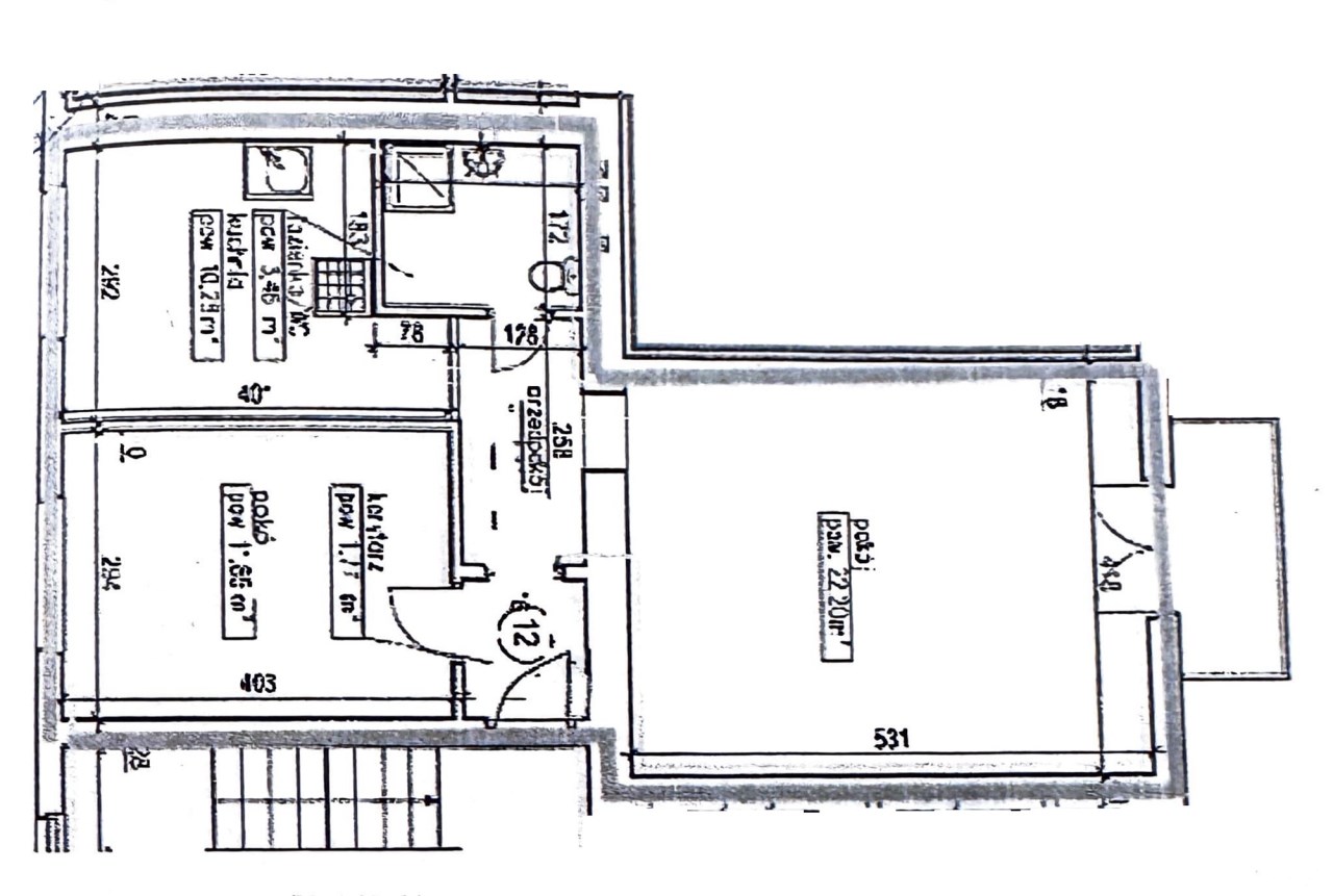
BIURO GRZEGOREK NIERUCHOMOŚCI ma przyjemność przedstawić ofertę dwustronnego mieszkania 2-pokojowego o powierzchni 52,86m2 zlokalizowanego przy ulicy Św. Mikołaja w Białymstoku.
Lokal usytuowany jest na IV piętrze w niskim bloku z cegły.

Mieszkanie składa się z przestronnego salonu, oddzielnej sypialni, obszernej kuchni, łazienki z wc i przedpokoju. Wszystkie pomieszczenia dostępne są z korytarza. Większość mebli i sprzętu w cenie - więcej informacji u Doradcy.

Mieszkanie jest jasne i słoneczne.

Mieszkanie ma ponadstandardową wysokość, co sprawia, że wydaje się jeszcze bardziej przestronne, a wyjście na balkon z widokiem na zieleń z podwójnymi drzwiami balkonowymi dodaje uroku i klimatu.
 
Standard mieszkania dobry - nadaje się do wprowadzenia, bardziej wymagający klienci mogą potrzebować odświeżenia lub przearanżowania. 

Blokiem administruje wspólnota mieszkaniowa, niewielki czynsz - 600 zł, ogrzewanie bez podzielników.

Do mieszkania przynależy balkon i piwnica. To mieszkanie to świetna propozycja jako inwestycja na wynajem - znajduje się tuż obok Rynku Kościuszki.

Więcej informacji u Doradcy.

Aneta Grzegorek
tel. 607 877 359

GRZEGOREK NIERUCHOMOŚCI
Cieszyńska 3A lok. 415
Białystok

Nota prawna

Opis oferty zawarty na stronie internetowej sporządzany jest na podstawie oględzin nieruchomości oraz informacji uzyskanych od właściciela, może podlegać aktualizacji i nie stanowi oferty określonej w art. 66 i następnych K.C.

Certyfikat energetyczny

Klasa energetyczna
A+
A
B
C
D
E
F
G
Wskaźnik EP kwh/(m2 rok)
23.3
23.3
23.3
23.3
23.3
23.3
23.3
23.3
Wskaźnik EK: 151,21
kwh/(m2rok)
Wskaźnik EU: 87,60
kwh/(m2rok)

Szczegóły oferty

Symbol oferty GRZ-MS-316
Powierzchnia 52,86 m²
Liczba pokoi 2
Piętro 4
Rodzaj budynku blok
Technologia budowlana cegła
Opłaty w czynszu ogrzewanie, wywóz śmieci, woda, fundusz remontowy, sprzątanie
Liczba pięter w budynku 4
Stan lokalu do wprowadzenia
Stan prawny Odrębna własność lokalu
Mies. czynsz admin. 600 PLN
Okna PCV
Instalacje dobre
Balkon średni
Liczba balkonów 1
Rok budowy 1964
Widok na osiedle
Usytuowanie dwustronne
Klucze tak

Kalkulator kredytowy

PLN
%
Wysokość raty

Kalkulator kosztów

PLN
PLN
PLN
PLN
PLN
PLN
%
PLN
Podatek od czynności cywilno-prawnych
Taksa notarialna (opłata notarialna)
VAT od taksy notarialnej (opłaty notarialnej)
Wniosek do WKW
VAT od wniosku do WKW
Prowizja agencji nieruchomości
VAT od prowizji agencji nieruchomości
Wypisy aktu notarialnego - około
RAZEM (cena + opłaty)

Podobne oferty

oferta na wyłączność
mieszkanie na sprzedaż - Białystok, Starosielce, Klepacka

mieszkanie na sprzedaż

Białystok, Starosielce, Klepacka
3 pokoje 48,45 m2 8 895,77 zł/m2
oferta na wyłączność
mieszkanie na sprzedaż - Białystok, Starosielce, Klepacka

mieszkanie na sprzedaż

Białystok, Starosielce, Klepacka
3 pokoje 52,14 m2 8 496,36 zł/m2
oferta na wyłączność
mieszkanie na sprzedaż - Białystok, Starosielce, Klepacka

mieszkanie na sprzedaż

Białystok, Starosielce, Klepacka
3 pokoje 48,14 m2 8 496,05 zł/m2
oferta na wyłączność
mieszkanie na sprzedaż - Białystok, Starosielce, Klepacka

mieszkanie na sprzedaż

Białystok, Starosielce, Klepacka
3 pokoje 47,98 m2 10 400,17 zł/m2

Napisz do nas

Proszę wypełnić to pole
Proszę wypełnić to pole
Proszę wypełnić to pole
Proszę wypełnić to pole
Trwa wysyłanie...

Ta strona wykorzystuje pliki cookies w celach statystycznych oraz w celu dostosowania naszych serwisów do indywidualnych potrzeb klientów. Zmiany ustawień dotyczących plików cookie można dokonać w dowolnej chwili modyfikując ustawienia przeglądarki. Korzystanie z tej strony bez zmian ustawień dotyczących cookies oznacza, że będą one zapisane w pamięci urządzenia.

rozumiem