Białystok, Starosielce, Klepacka

Mieszkanie na sprzedaż

Opis nieruchomości

Nowa inwestycja - możliwość wykończenia pod klucz

 
Zapraszamy do zapoznania się z ofertą nowej inwestycji Moje Pierwsze Mieszkanie
 
Kameralna zabudowa - jedynie 28 mieszkań w niskim 3-piętrowym budynku. 

Mieszkanie gotowe do odbioru.

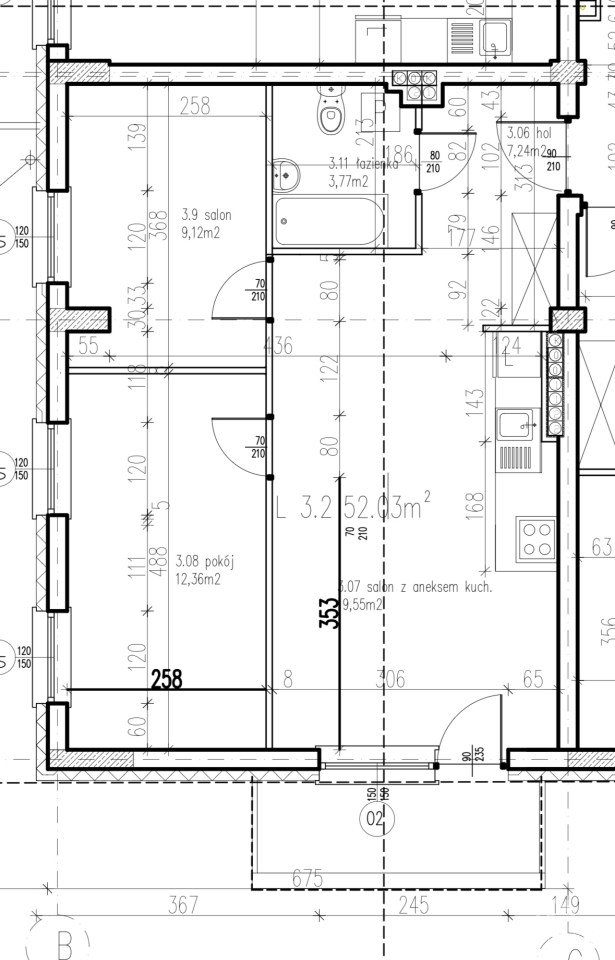
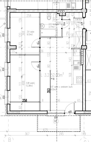
Mieszkanie nr 17 położone jest na drugim piętrze.
Powierzchnia mieszkania to 52,03
m2, na którą składają się:
  • salon 16,48m2
  • aneks kuchenny 7,75m2
  • dwie sypialnie (8,99m2 i 8,96m2)
  • łazienka z wc 3,00m2
  • przedpokój 6,85m2
  • dodatkową powierzchnią jest balkon 4m2
DODATKOWE INFORMACJE:
  • stan deweloperski lub wykończone pod klucz - cena wykończonego pod klucz 549 000 zł (specyfikacja wykończenia dostępna u Doradcy, mieszkanie wykończone zgodnie z preferencjami kupującego)
  • blokiem zarządzać będzie wspólnota mieszkaniowa
  • dostępna jest w ogólnodostępna wózkownia/rowerownia na parterze
  • na terenie bloku dostępny jest plac zabaw tylko dla mieszkańców
  • w bloku zamontowany jest wideodomofon podnoszący bezpieczeństwo i komfort mieszkańców
  • teren bloku częściowo ogrodzony
  • istnieje możliwość dokupienia miejsca postojowego w garażu podziemnym - cena 40 000 zł
 
Kupujący nie płaci podatku PCC 2%.

Pełna lista mieszkań z tej inwestycji dostępna na naszej stronie: www.grzegoreknieruchomosci.pl/inwestycje

_____________________________________________________

 
Inwestycja MOJE PIERWSZE MIESZKANIE to kameralny blok o harmonijnej, przyjemnej kolorystyce.

Dla komfortu mieszkańców starannie rozplanowano przestrzeń mieszkań oraz teren wokół inwestycji, a czas najmłodszym mieszkańcom umili plac zabaw znajdujący się tuż przy bloku. Mieszkańcy mają również do dyspozycji wielostanowiskowy garaż podziemny, zewnętrzne miejsca parkingowe, a także ogólnodostępną wózkownię/rowerownię.

W ofercie znajdują się różnorodne mieszkania, zarówno kompaktowe mieszkania 2-pokojowe, jak i większe, rodzinne 3 pokoje. Mieszkania na parterze mają przynależne ogródki oraz są przystosowane dla osób z niepełnosprawnościami. Mieszkania na wyższych piętrach mają duże balkony, a dwa mieszkania na ostatnim piętrze - obszerne tarasy

Inwestycja MOJE PIERWSZE MIESZKANIE położona jest na osiedlu Starosielce, przy ulicy Klepackiej. Świetnie rozwinięta infrastruktura handlowo-usługowa w okolicy, tereny zielone oraz przystanek komunikacji miejskiej z dobrym dojazdem do centrum tuż obok bloku.


Inwestycja MOJE PIERWSZE MIESZKANIE - lokalizacja


Starosielce, ulica Klepacka
  • 6,8 km do centrum
  • 1 min. do przystanku autobusowego
  • dojazd do centrum: 12 min samochodem
Istotne punkty w okolicy inwestycji:
  • Sklep: Biedronka (400 m, 6 minut spacerem)
  • Przystanek autobusowy (30 m, 1 minuta spacerem)
  • Poradnia Lekarzy Rodzinnych (120 m, 2 minuty spacerem)
  • Kościół (50 m, 1 minuta spacerem)
  • Szkoła Podstawowa (1 km, 14 minut spacerem)
  • Przedszkole (500 m, 7 minut spacerem)
Oferujemy usługę wsparcia w uzyskaniu kredytu hipotecznego - współpracujemy z zaufanym Doradcą Kredytowym.
 
Więcej informacji:

Aneta Grzegorek
tel. 607 877 359
aneta@grzegoreknieruchomosci.pl



Adam Grzegorek
tel. 600 290 397
adam@grzegoreknieruchomosci.pl

 

Nota prawna

Opis oferty zawarty na stronie internetowej sporządzany jest na podstawie oględzin nieruchomości oraz informacji uzyskanych od właściciela, może podlegać aktualizacji i nie stanowi oferty określonej w art. 66 i następnych K.C.

Szczegóły oferty

Symbol oferty GRZ-MS-256
Powierzchnia 52,03 m²
Powierzchnia użytkowa 52,03 m²
Powierzchnia balkonów/tarasów 4,00 m²
Liczba pokoi 3
Piętro 2
Rodzaj budynku blok
Technologia budowlana cegła nowa
Opłaty w czynszu administracja, Części wspólne, ogrzewanie, woda, wywóz śmieci
Opłaty wg liczników gaz, prąd
Liczba pięter w budynku 3
Garaż miejsce parkingowe
Stan lokalu deweloperski
Stan prawny Odrębna własność lokalu
Mies. czynsz admin. 400 PLN
Okna PCV
Instalacje nowe
Balkon średni
Liczba balkonów 1
Rok budowy 2025
Plac zabaw tak
Widok na podwórko
Gaz tak - miejski
Dojazd asfalt
Otoczenie zabudowa jednorodzinna
Ogrzewanie C.O. miejskie
Odległość do komunikacji publicznej [m] 30 m
Odl. do sklepu [m] 400 m
Odl. do szkoły [m] 1 000 m
Odl. do przedszkola [m] 500 m
Usytuowanie dwustronne
Drzwi antywłamaniowe tak

Pomieszczenia

Rodzaj kuchni aneks kuchenny - połączony z salonem
Typ łazienki razem z wc

Kalkulator kredytowy

PLN
%
Wysokość raty

Kalkulator kosztów

PLN
PLN
PLN
PLN
PLN
PLN
%
PLN
Podatek od czynności cywilno-prawnych
Taksa notarialna (opłata notarialna)
VAT od taksy notarialnej (opłaty notarialnej)
Wniosek do WKW
VAT od wniosku do WKW
Prowizja agencji nieruchomości
VAT od prowizji agencji nieruchomości
Wypisy aktu notarialnego - około
RAZEM (cena + opłaty)

Podobne oferty

oferta na wyłączność
mieszkanie na sprzedaż - Białystok, Starosielce, Klepacka

mieszkanie na sprzedaż

Białystok, Starosielce, Klepacka
3 pokoje 48,49 m2 8 888,43 zł/m2
oferta na wyłączność
mieszkanie na sprzedaż - Białystok, Starosielce, Klepacka

mieszkanie na sprzedaż

Białystok, Starosielce, Klepacka
2 pokoje 36,79 m2 8 888,28 zł/m2
oferta na wyłączność
mieszkanie na sprzedaż - Białystok, Starosielce, Klepacka

mieszkanie na sprzedaż

Białystok, Starosielce, Klepacka
3 pokoje 48,45 m2 8 895,77 zł/m2
oferta na wyłączność
mieszkanie na sprzedaż - Białystok, Starosielce, Klepacka

mieszkanie na sprzedaż

Białystok, Starosielce, Klepacka
3 pokoje 48,35 m2 8 479,83 zł/m2

Napisz do nas

Proszę wypełnić to pole
Proszę wypełnić to pole
Proszę wypełnić to pole
Proszę wypełnić to pole
Trwa wysyłanie...

Ta strona wykorzystuje pliki cookies w celach statystycznych oraz w celu dostosowania naszych serwisów do indywidualnych potrzeb klientów. Zmiany ustawień dotyczących plików cookie można dokonać w dowolnej chwili modyfikując ustawienia przeglądarki. Korzystanie z tej strony bez zmian ustawień dotyczących cookies oznacza, że będą one zapisane w pamięci urządzenia.

rozumiem